Les infos Essentielles
Contacter Cathy CAVALERIE 06/18/96/00/77
Découvrez cette maison individuelle avec un sous-sol total comprenant :
- Au rez-de-chaussée : Une entrée desservant une cuisine indépendante, un séjour-salon lumineux et traversant, une chambre, une salle de bains et un WC indépendant.
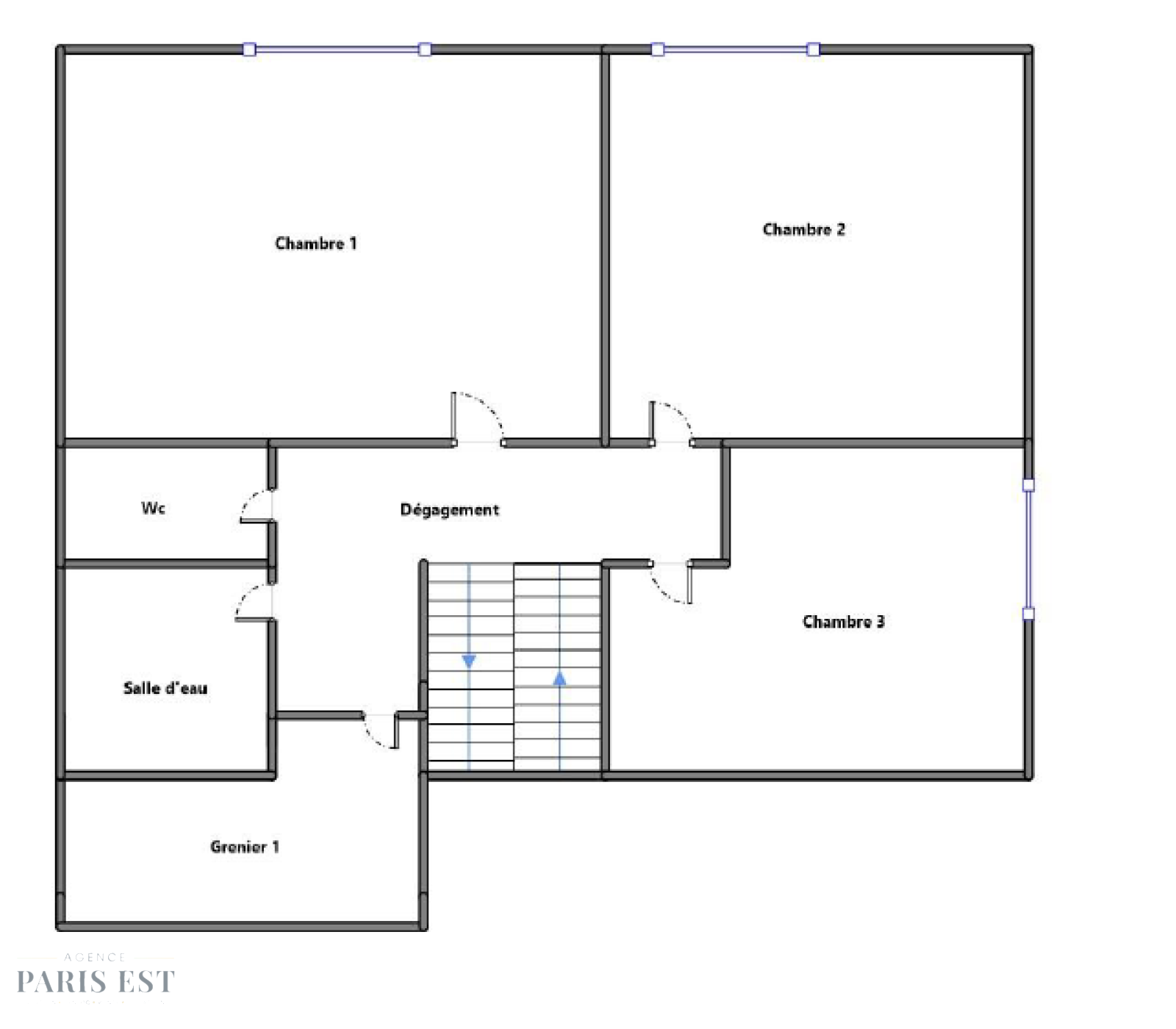
- Au 1er étage : un dégagement desservant trois chambres , une salle d'eau, un WC indépendant et un débarras pratique pour le rangement.
- Au sous-sol : Un garage permettant de stationner deux véhicules, complété par un espace chaufferie et une cave/réserve.
LES POINTS FORTS :
-
Localisation idéale : À seulement 7 minutes à pied de la gare du Vert Galant (RER B) et à proximité immédiate des commerces du quartier (boulangerie, pharmacie, supermarché).
-
Sous-sol total : Un espace de stockage exceptionnel comprenant un garage double, une chaufferie et une réserve.
-
Vie de plain-pied possible : Une chambre et une salle de bains situées dès le rez-de-chaussée.
Honoraires d’agence à la charge du vendeur. Information d'affichage énergétique sur ce bien : DPE G - GES G. Retrouvez tous nos biens sur notre site internet. www.agence-paris-est.com. Les informations sur les risques auxquels ce bien est exposé sont disponibles sur le site Géorisques : www.georisques.gouv.fr
Les infos Energetiques
Logement à consommation énergétique excessive : classe G
Montant estimé des dépenses annuelles d'énergie pour un usage standard est compris entre 6 350 € et 8 620 € . Prix moyens des énergies indexés sur les années 2021, 2022 et 2023 (abonnements compris).
Ce site est protégé par reCAPTCHA, les Politiques de Confidentialité et les Conditions d'Utilisation de Google s'appliquent.
Détails des diagnostics énergétiques
Logement à consommation énergétique excessive : classe G
Montant estimé des dépenses annuelles d'énergie pour un usage standard est compris entre 6 350 € et 8 620 € . Prix moyens des énergies indexés sur les années 2021, 2022 et 2023 (abonnements compris).
Appartement en vente à Aulnay-Sous-Bois avec Agence Paris Est
